
North Devon Carbon Zero Homes Approved
10.04.22
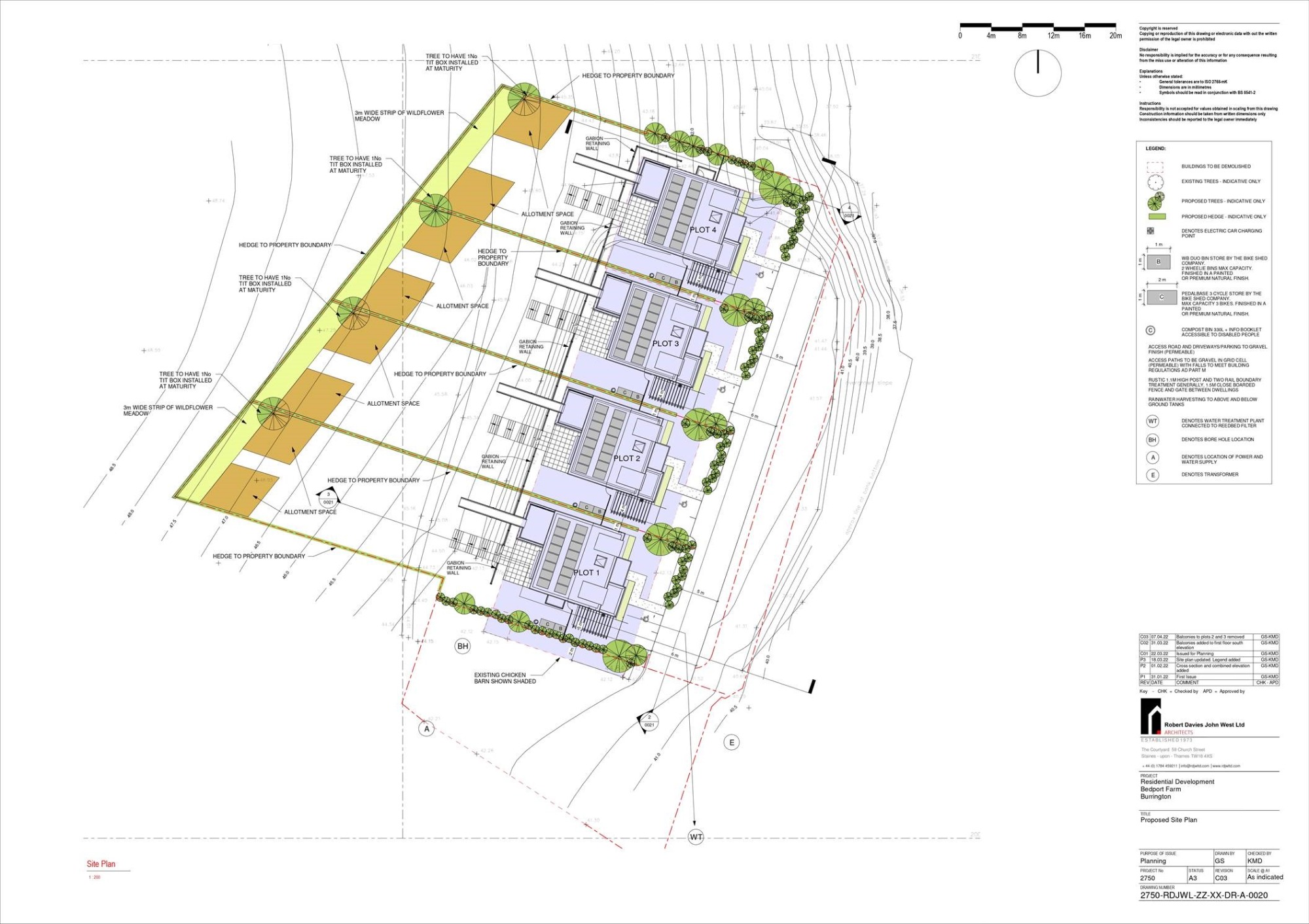
We are all delighted to have received unanimous support from North Devon planning committee for 4 contemporary zero carbon homes in Burrington. The scheme followed a Class Q approval, fallback position. Each house optimises passive design, solar gain, incorporates super-insulation and renewables.
The layouts suit modern family lifestyle, work from home and multi-generational living. External living areas, gardens, allotments and considered planting all contribute to the quality of the setting and views across the landscape/ Dartmoor are a real bonus.
Plots will be available via www.matchproperty.co.uk shortly.
Well done Georg and Janett, it was a pleasure working with you.



